
True Pillars Realty
Terms and Privacy
New Launch Projects
Properties
Address
C-202, C-block, second floorGolden I, Sector-Tech Zone IV, Amrapali Leisure Valley, Greater Noida, Uttar Pradesh
Sobha located in Sector 1, greater-noida-west, is meticulously designed to offer a modern, healthy, and secure lifestyle through five thoughtfully planned lifestyle zones. With just two apartments per floor, residents enjoy the perfect blend of privacy and exclusivity. Each home features a modular kitchen and overlooks serene green landscapes, adding a refreshing touch to everyday living.
Situated in Noida’s greenest sector, Sobha invites you to breathe fresh air and embrace sustainable living. The project integrates organic elements, lush gardens, and fruit orchards, reflecting the Sobha commitment to eco-friendly development. Thoughtful spaces like the senior citizen deck, central lawn, and tree-lined pathways enhance the experience of living close to nature.
























With over 70% open area and 45% of the landscape dedicated to greenery, the project offers a serene and eco-friendly environment. Residents can also enjoy world-class amenities, including a 26,000 sq. ft. clubhouse, swimming pool, gymnasium, and more. Developed by Sobha enjoys excellent connectivity to major highways, metro stations, and key destinations, making it an ideal blend of luxury, comfort, and convenience.
In Sobha, The Royal Clubhouse at Sobha offers an exclusive range of world-class amenities designed for recreation and rejuvenation. Residents can unwind in the gymnasium beside the swimming pool, or enjoy sports at the squash, tennis, badminton, and basketball courts. The multi-purpose hall, complete with pantry facilities, provides the perfect venue for hosting celebrations and gatherings with friends and family.
Sobha received its RERA approval on February 27, 2019, with construction commencing soon after. As per RERA guidelines, the scheduled completion date for the project is January 29, 2027. However, based on the current pace of development, possession is expected to begin by December 2024. Developed under the Sobha brand—renowned for its timely project delivery and efficient construction management—Sobha is well on track for early possession. For the latest possession updates or specific queries, prospective buyers are encouraged to connect directly with the Sobha team or consult WhiteHat Realty for verified information.
Life at Sobha is enriched by seamless multi-modal connectivity. The project offers direct access to the Yamuna Expressway via the F1 Racing Track and excellent connectivity to Delhi through the Noida–Greater Noida Expressway. The nearby Aqua Line Metro Station ensures effortless travel, while the Magenta Line at Okhla Bird Sanctuary connects you swiftly to South Delhi. Premier institutions like Amity University and Lotus Valley International School, as well as corporate offices in Sector 12, are just minutes away. The project is also well-connected to shopping malls, banks, and hospitals, making everyday conveniences easily accessible.
| Unit Type | Saleable Area | RERA Carpet Area | Price | Floor Plans |
|---|---|---|---|---|
| 2 BHK + 2T | 1,300 Sq.ft. | 1,050 sq. ft. | 2.21 Cr* | View |
| 3BHK + 2T | 1,600 Sq.ft. | 1,450 sq. ft. | 2.72 Cr* | View |
| 3 BHK + 3T | 1,800 Sq.ft. | 1,650 sq. ft. | 3.06 Cr* | View |
| 4 BHK + 4T | 2,200 Sq.ft. | 2,050 sq. ft. | 3.74 Cr* | View |
| 4 BHK(Servent) | 2,500 Sq.ft. | 2,250 sq. ft. | 4.25 Cr* | View |
Sobha: A Leader in Real Estate Development
Sobha, a part of the renowned Sobha Group, brings over three decades of excellence in real estate development. Known for its commitment to quality construction, timely delivery, and customer satisfaction, the developer has successfully delivered several landmark projects across Noida and other key regions. Projects like Sobha Happy Trails and Sobha Nobility stand as testaments to Sobha high standards of design, execution, and reliability. Continuing this legacy, Sobha in Sector 12, Noida, exemplifies the brand’s vision of creating luxurious, well-connected homes that combine superior craftsmanship with a customer-first philosophy. With a proven track record spanning over 30 years, Sobha continues to shape modern urban living through trust, innovation, and excellence.
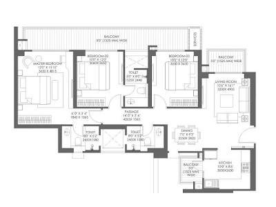
Ans. Sobha Sector 1 greater-noida-west offers spacious and luxurious 3 BHK apartments, designed for modern, upscale living.
• Grand Clubhouse
• Swimming pools
• Spa and wellness center
• Fully equipped gym
• Sports facilities (Tennis, Basketball, Badminton courts)
• Jogging and cycling tracks
• Landscaped gardens
• Children's play area
• Indoor games room
• Banquet hall
• Library
• 24/7 security with surveillance
• Dedicated parking space
Ans. The price range for apartments in Sobha Sector 1 greater-noida-west typically starts from ? depending on the size and type of unit. Contact us for the latest prices & offers: Call Us: +91 9958578496
Ans. Yes, the Sobha Sector 1 greater-noida-west holds the RERA registration number for the project. To check the same, visit up RERA website.
Ans. Yes, financing options are available for purchasing apartments at Sobha Sector 1 greater-noida-west. Please contact us for detailed information on the available financing plans and options.
Ans. Sobha stands out because it's not just built for now, it’s built for what comes next. With Mivan construction technology, over 50% open green space, and a 60,000 sq. ft. clubhouse, it’s designed to give families not just homes, but a lifestyle that lasts. Being backed by Sobha adds a level of trust and timely delivery that’s hard to find elsewhere.
Ans. Yes, especially if you’re looking for stable long-term growth. The project is located in Sector 150, which is seeing rapid infrastructure development due to its proximity to Jewar Airport and metro connectivity. As this part of Greater Noida matures, property prices are expected to rise making this a smart move for patient investors and end-users alike.
Ans. The project offers a compelling combination of excellent connectivity, modern infrastructure, and competitive pricing, making it a sound long-term investment with strong potential for value appreciation.
Ans. Sobha enjoys excellent connectivity via the 130-meter-wide road, proximity to the upcoming metro station, and easy access to Noida, Delhi, and Greater Noida, ensuring smooth daily commutes.